Pavimento sopraelevato
Posa in opera
Offriamo un servizio completo di posa in opera di pavimenti sopraelevati, sia per interni che per esterni, su tutto il territorio nazionale. Grazie alla collaborazione con ditte artigiane qualificate, garantiamo interventi professionali e di alta qualità, eseguiti da esperti del settore con anni di esperienza. Il nostro network di artigiani è selezionato per offrire installazioni precise e durature, assicurando un risultato impeccabile in ogni progetto. Contattaci per maggiori informazioni e per ricevere un preventivo personalizzato!
Modalità posa in opera
Dopo aver verificato quanto sopra, è possibile impostare il progetto di posa e la trama della struttura portante dei pannelli. Prima di procedere è comunque indispensabile rilevare i dislivelli del solaio, in quanto i supporti standard hanno una regolazione media in altezza di 30 mm, ma spesso i solai hanno dislivelli maggiori. Inoltre, dopo aver asportato la polvere dalla soletta, è consigliabile un trattamento antipolvere da eseguirsi con vernice inalterabile a base poliuretanica o epossidica. Questo trattamento è essenziale nel caso in cui il plenum sottopavimento sia utilizzato come canale dell’aria condizionata.
1.
Condizione preliminare per l’avvio della posa è il tracciamento di due assi ortogonali di partenza all’interno del locale, utilizzando una lignola battente
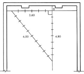
(verificare l’ortogonalità dei due assi applicando il teorema di Pitagora: la somma dei quadrati costruiti sui cateti di un triangolo rettangolo è uguale al quadrato costruito sull’ipotenusa).
Condizione preliminare per l’avvio della posa è il tracciamento di due assi ortogonali di partenza all’interno del locale, utilizzando una lignola battente
2. Successivamente si procede con il posizionamento delle colonnine secondo la maglia modulare di mm 600x600, partendo dal punto 0 (Fig. 1). Se nella ripartizione modulare si ottengono agli estremi perimetrali due tagli di pannello di misura diversa (ad esempio uno da cm 50 ed uno da cm 20) è consigliabile sommare le due misure e dividerle a metà (50+20=70/2=35) ed è comunque sempre meglio evitare di avere porzioni di pannello troppo esigue ai lati del locale da pavimentare.3.
Terminato il montaggio della struttura, si mettono in quota le colonnine e (se previste) le traversine, con l’ausilio di autolivello o laser.
4.
A questo punto si possono posare i primi pannelli in quantità sufficiente a formare una T, iniziando dalla prima fila interna sui due assi ortogonali5.
Si effettua poi un controllo della squadratura: cateto a = ml 3,60 cateto b = ml 4,80 ipotenusa c = ml 6,00
6.
Si prosegue con la posa dei pannelli in progressione nelle due direzioni opposte alla T iniziale
7. Si conclude con il montaggio dei pannelli perimetrali, dopo aver eseguito i relativi tagli a misura. Nell’eventualità in cui si posi il pavimento sopraelevato senza l’utilizzo di traverse, è necessario fissare i supporti a terra con adesivo. In questo caso colonnine e pannelli vengono montati contemporaneamente e messi in quota con il livello di volta in volta. Al termine, prima di poter camminare su questo pavimento, si dovranno poi attendere circa 48 ore per consentire alla colla che fissa i supporti di asciugarsi. Infine, qualsiasi sia il tipo di pavimento sopraelevato posato, è buona norma proteggerlo con fogli di cartone o di polietilene fino a quando l’allestimento del locale non sia definitivamente concluso.